Foto leveres af Google Street View og kan være upræcist:
Kontor til leje, Aulum, Holstebrovej
Holstebrovej, 7490 Aulum- Kontor til leje
- 60 - 1.375 m2
- 31.250 kr. per måned

Holstebrovej, 7490 Aulum
- Kontor til leje
- 60 - 1.375 m2
- 31.250 kr. per måned
FÅ MERE INFO OM LOKALET
Du linkes til en anden portal, som evt. kan kræve betaling eller oprettelse
Kontor til leje, Aulum, Holstebrovej
Fakta
- 291305
- Kontor
- Lager
- Kontorfællesskab
- Ja
- Ja
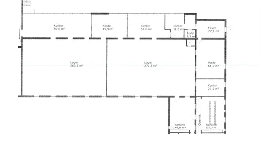
- 60 - 1.375 m2
- 272,72 kr.
FÅ MERE INFO OM LOKALET
Du linkes til en anden portal, som evt. kan kræve betaling eller oprettelse
KONTOR- OG LAGERLOKALER TÆT PÅ HOLSTEBRO MOTORVEJEN.
Lyse, rummelige kontorer og store lagerlokaler med porte – perfekte rammer for både administration og logistik."
Lokalerne kan nemt opdeles i flere lejemål.
Lokalerne kan nemt opdeles i flere lejemål.
Services:
Bredbånd, Eget firmaskilt ved hoveddør, Filserver adgang, Køkken/frokoststue, Lagerplads, Parkeringspladser, Rengøring
Information og data
Dette lagerlokale, som også kan anvendes til Lager eller Kontorfællesskab, ligger på Holstebrovej i Aulum. Aulum har postnummeret 7490, og ligger i kommunen Herning, som ligger i Region Midtjylland. Lokalet er i alt 1375 m2. Lejepris: 375.000 kr. per år.